Mô tả dự án
Mẫu nhà mái Nhật 2 tầng 8.5 x 15.5 m
Được thiết kế theo phong cách hiện đại, thanh thoát, mang đến không gian sống tiện nghi cho gia đình 4 – 6 thành viên.
Ngôi nhà nổi bật với mái Nhật dốc nhẹ, hệ cột vuông bề thế, cửa gỗ pano kính cao cấp và ban công lan can sắt mỹ thuật. Tone trắng – xám chủ đạo kết hợp đá ốp chân tường tạo vẻ đẹp bền vững, tinh tế.
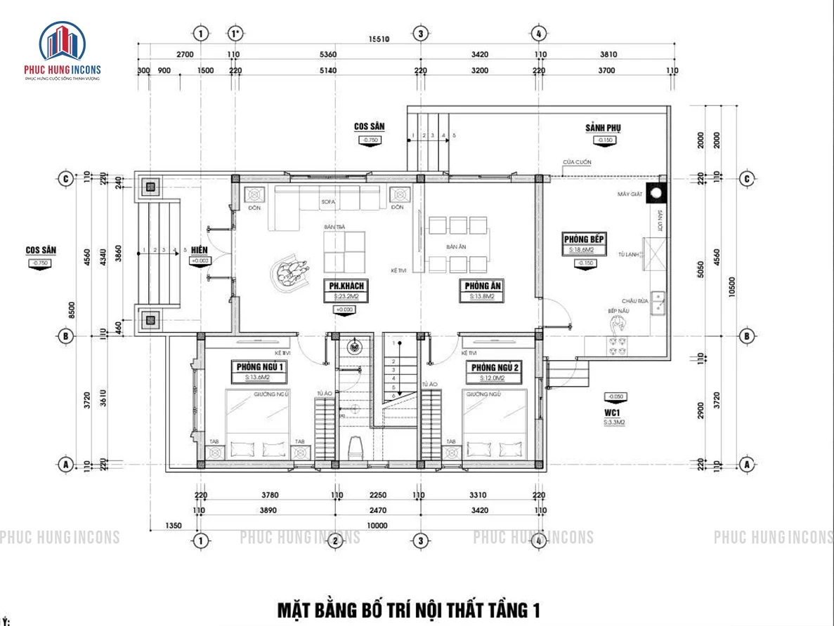
Mặt bằng tầng 1 được bố trí hợp lý, tối ưu không gian sử dụng:
-
Phòng khách: 23.1 m² – rộng rãi, kết nối trực tiếp sảnh chính.
-
Phòng bếp + ăn: 18.6 m² – có sảnh phụ tiện lợi cho việc nấu nướng và ra vào.
-
Phòng ngủ 1: 13.4 m² – thích hợp cho ông bà hoặc người lớn tuổi.
-
Phòng ngủ 2: 12.0 m² – thoáng mát, dễ dàng bố trí nội thất.
-
WC 1: 3.3 m² – đặt ở góc, thuận tiện cho sinh hoạt.
Không gian tầng 2 được bố trí thông minh, tối ưu sự riêng tư và gắn kết:
-
Phòng ngủ 3: 13.4 m²
-
Phòng ngủ 4: 12.0 m²
-
Phòng sinh hoạt chung: 12.4 m² – nơi kết nối gia đình sau những giờ làm việc.
-
Phòng thờ: 12.3 m² – vị trí trang nghiêm, hợp phong thủy.
-
Ban công & sân thượng: Đón gió, ánh sáng tự nhiên, thích hợp làm góc thư giãn.
-
WC 2: 4.0 m² – tiện nghi cho sinh hoạt tầng 2.
Ngôi nhà gây ấn tượng với thiết kế mái Nhật dốc nhẹ, màu ngói xanh ghi hiện đại, tường sơn trắng tinh tế kết hợp đá ốp chân tường sang trọng. Hệ cột vuông bề thế, cửa gỗ pano kính và ban công lan can sắt mỹ thuật mang đến cảm giác vừa hiện đại vừa ấm áp
